Инженерные Системы водоснабжение, отопление, канализация
Тел: +7 (812) 924-03-25

Схемы с чертежами систем отопления и канализации в таунхаусе.

проект отопления и водоснабжения проект отопления и водоснабжения проект отопления и водоснабжения проект отопления и водоснабжения проект отопления и водоснабжения проект отопления и водоснабжения проект отопления и водоснабжения проект отопления и водоснабжения проект отопления и водоснабжения проект отопления и водоснабжения проект отопления и водоснабжения проект отопления и водоснабжения

Газовый котел 12 кВт тепла производительностью. Площадь обогреваемых жилых помещений (комнат) 90 м2.

Конструктивные характеристики строения:
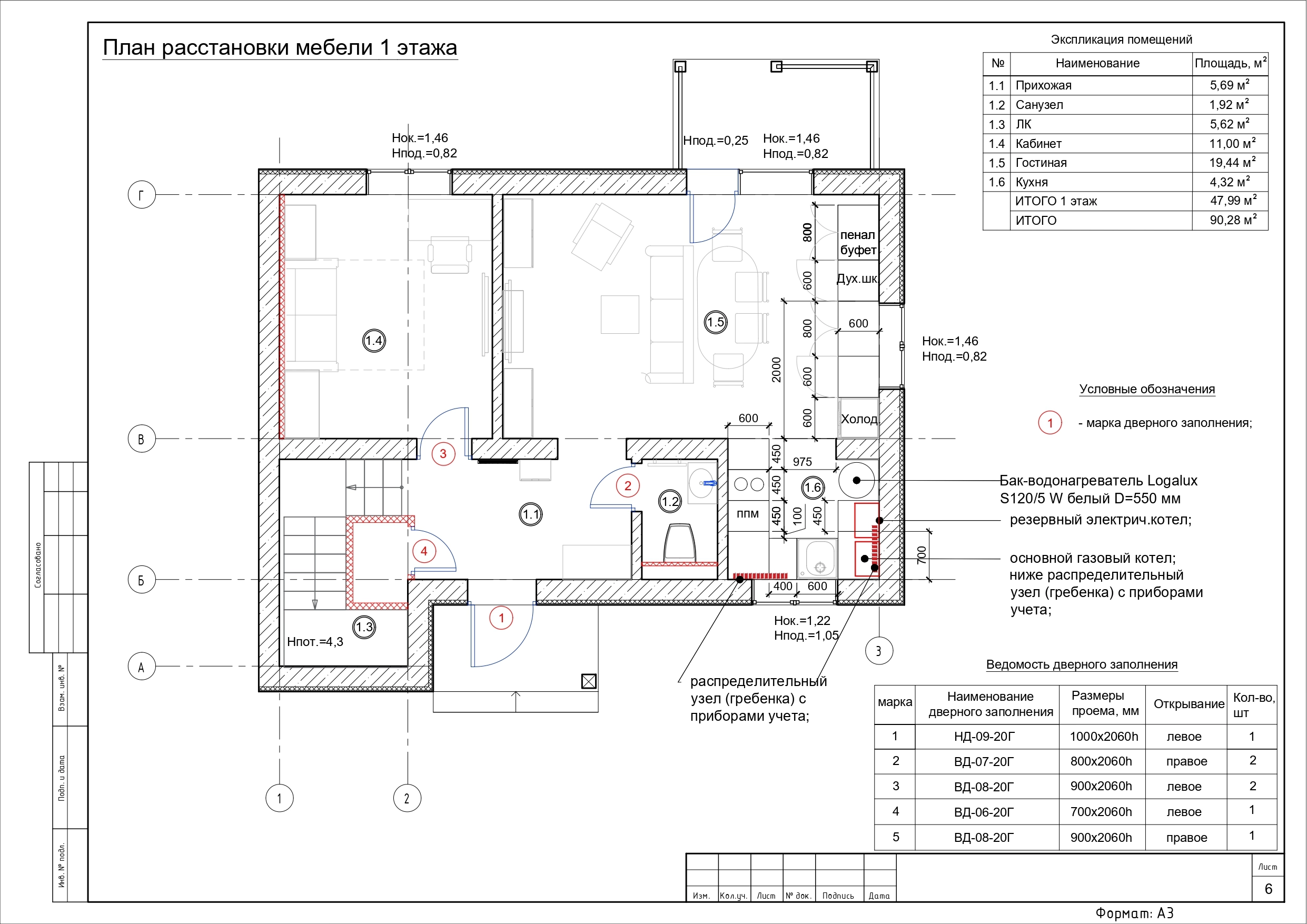
1. Площадь сблокированного дома: 88,4 кв.м. (таунхаус/пентхаус/дублекс).
2. Двухэтажный сблокированный дом, второй этаж мансардный (полноценный).
3. Материал наружных стен: газобетон. Толщина 300 мм, объемная плотность 500 кг/м3, утеплитель 50 мм.
4. Фундамент плитный (обратный ростверк с утеплением подошвы пеноплексом 50 мм).
5. Пол первого этажа: монолитная плита толщиной 200 мм., утеплитель, гидроизоляция.
6. Перекрытия деревянно-балочные (толщина 150 для бетона или 20 мм для деревянных балок.
7. Кровля мансардная, деревянно-стропильная система, утеплитель, паро- и гидроизоляция.
8. Покрытие кровли: мягкая черепица (с подшивой софитами по контуру с перфорацией).
9. Облицовка наружных стен: мокрая штукатурка по сетке, декоративная окраска.
10. Цоколь - декоративная штукатурка по сетке с покраской или с отделкой декоративным камнем.
11. Внутренние несущие стены: газобетон 300 мм. Межкомнатные перегородки первого этажа: газобетон 150 мм., внутренние поверхности стен с затиркой. Межкомнатные перегородки второго этажа: гипсокартон на металлическом каркасе.
12. Входная дверь металлическая (утепленная с отделкой внутри деревом).
13. Окна выполнены из металлопластиковых оконных блоков с двухкамерными стеклопакетами, с отливами, подоконными досками.
14. Крыльцо: плитка (керамогранит, мрамор, гранит. декоративная плитка).
15. Потолок обшит гипсокартоном. Высота потолков первого этажа 2,70 метра.
16. Межэтажные лестницы временные, деревянные (из строительной доски).
17. Пол второго этажа: влагостойкая фанера 15 мм (с расшивкой до 3 мм).
18. Водосток наружный (со сливом воды в дождеприемники по всем трубам).

ТЕХНИЧЕСКИОЕ ЗАДАНИЕ:

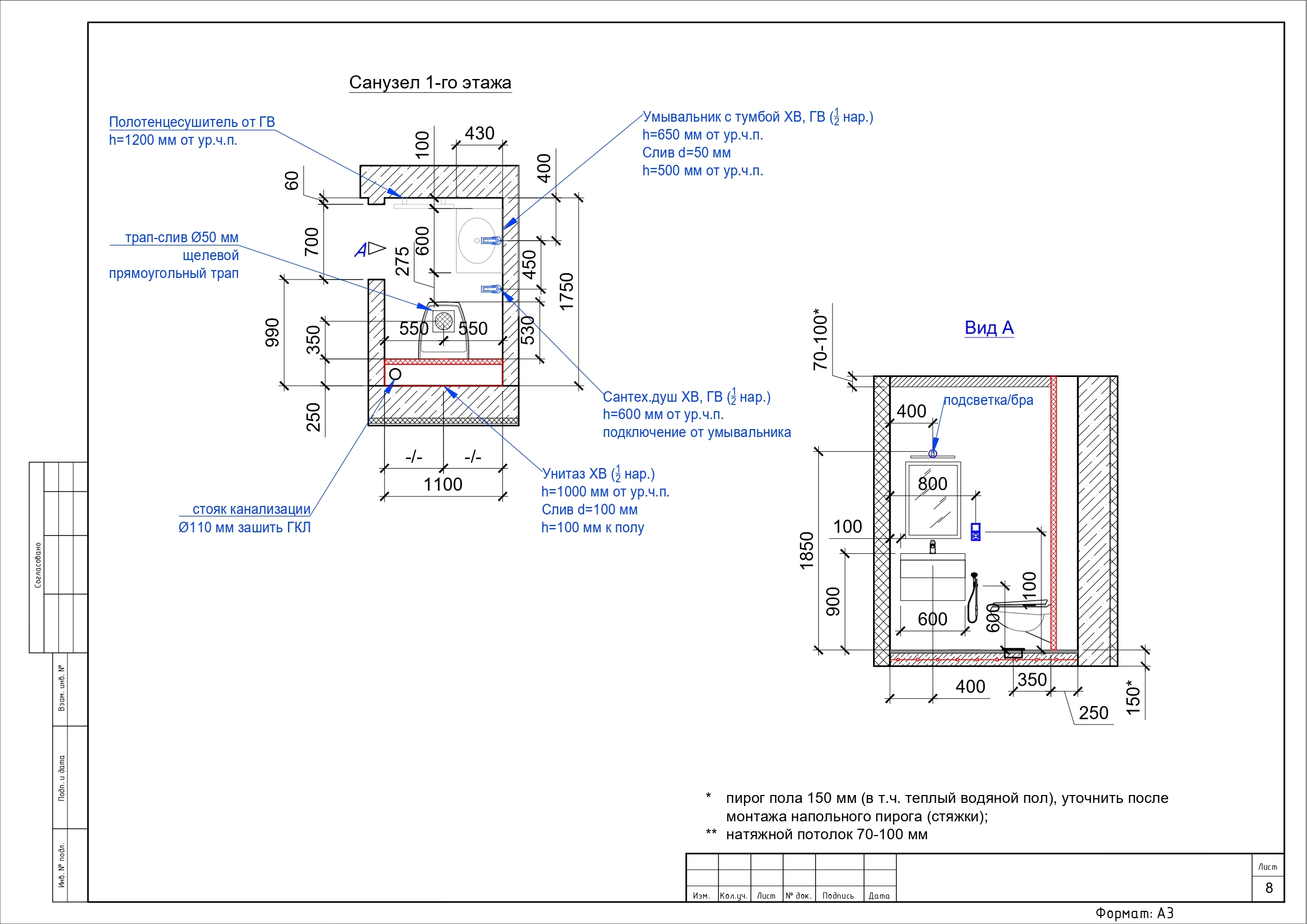
Бак-водонагреватель Logalux S120/5 W белый D=550 мм основной газовый котел; ниже распределительный узел (гребенка) с приборами учета;

Площадь комнаты 16,13 м2 х высоту 2,5 м х 41 Ватт/1м3= =1656,4/170=9,74 округляем до 10 секций, где 170 Вт - теплопередача 1 секции радиатора;

Зона электрического теплого пола электрич.пол Energy (греющий кабель в стяжку), термодатчик, 10 секций 810х80х56h 10 секций 810х80х56h;

Пирог пола 150 мм (в т.ч. теплый водяной пол), уточнить после монтажа напольного пирога (стяжки);

Основной газовый котел; ниже распределительный узел (гребенка) с приборами учета;

Плитка керамогранит по слою клея-ровнителя 15 мм, стяжка ц.п. с эл. кабелем теплого пола, фольгированная подложка, 1 сл. ГВЛ Кнауф "Супер пол" 20 мм, фанера 12 мм, сущ. плита перекрытия 200 мм.


Смонтируем под ключ отопление с газовым, электрическим, с дизельным котлом или на дровах (пиллетах). Подключим и установим водоснабжение и канализацию в частном доме с септиком, в загородном коттедже или на даче. Монтаж сантехники делаем любой сложности и объема.


Отопление в доме, работа + материалы и оборудование:

- за 1050 руб/м2 с электрическим котлом под ключ;

- за 1 250 руб/м2 с твердотопливным котлом под ключ;

- за 1 450 руб/м2 с газовым/дизельным котлом под ключ.

Скидка на монтаж инженерных систем.

При заказе комплекса работ, Мы существенно сделаем Вам дешевле.

ЗАКАЗАТЬ!
Сервис обратного звонка RedConnect